「WOODBOX」人気住宅商品「BUNGALOW」がリニューアル!ワンフロアで家族がつながる、今も将来も暮らしたい平屋
「WOODBOX」人気住宅商品「BUNGALOW」がリニューアル!
ワンフロアで家族がつながる
今も将来も暮らしたい平屋

-
プロダクト概要
WOODBOXシリーズでもトップの人気を誇るBUNGALOWが、従来の間取りをアップデートしリニューアル。
コンセプトは「ワンフロアで家族がつながる自然と調和する、今も将来も暮らしたい平屋」
時代に左右されないデザインと昼光の活用を最大限に引き出すパッシブ設計を採用。
生活動線・美観・利便性をバランスを良く備えた、統一感のあるシンプルなゾーニングが特徴。
LDKとデッキが連続し、吹き抜けを設けることで開放感を演出。
デザインと使い勝手の良さを兼ね備えた、家族の快適な暮らしを叶えた平屋が誕生した。
【プロダクトデザイン】

流行に左右されない、木の温もりと質感を生かしたシンプルなファサードは、時間が経過しても色褪せることなく、長年にわたって愛され続けるデザインを実現。
片流れ屋根を採用することでダイナミックかつスタイリッシュな外観に。 外壁のガルバリウム鋼板のブラックが、スタイリッシュな外観を一層引き立てる。

梁をアピールした開放的なリビングスペース。
廊下を経由せず、各部屋がリビングからつながるシームレスな生活を実現した。
家事効率も考慮し、キッチンを中心に配置し、洗面室やランドリールームへの動線をスムーズに。

印象的なレッドシダーで囲まれたモルタルデッキ。
リビングからシームレスにつながるデッキスペースは、屋外でありながらも屋内のような使い心地を提案。
夏場でも強い日差しをカットし、過度な光の取り込みを防ぎ、軒と窓の配置のバランスを考慮したパッシブ設計により、昼光を最大限に活用している。

空間に深みを与え、くつろぎのための寝室。
グレーで統一されたベッドルームは、静謐で落ち着いた雰囲気に。
間接照明を採用することで、限られたスペースでも奥行きを感じさせ、目に直接光源が入らず、柔らかい光でリラックスできる空間を演出。

吹き抜けと広々とした窓を備えた子ども部屋。
キッチン横の部屋は吹き抜けを採用し、高い位置に窓を配置することで、長時間にわたって明るい自然光を取り込んでいる。
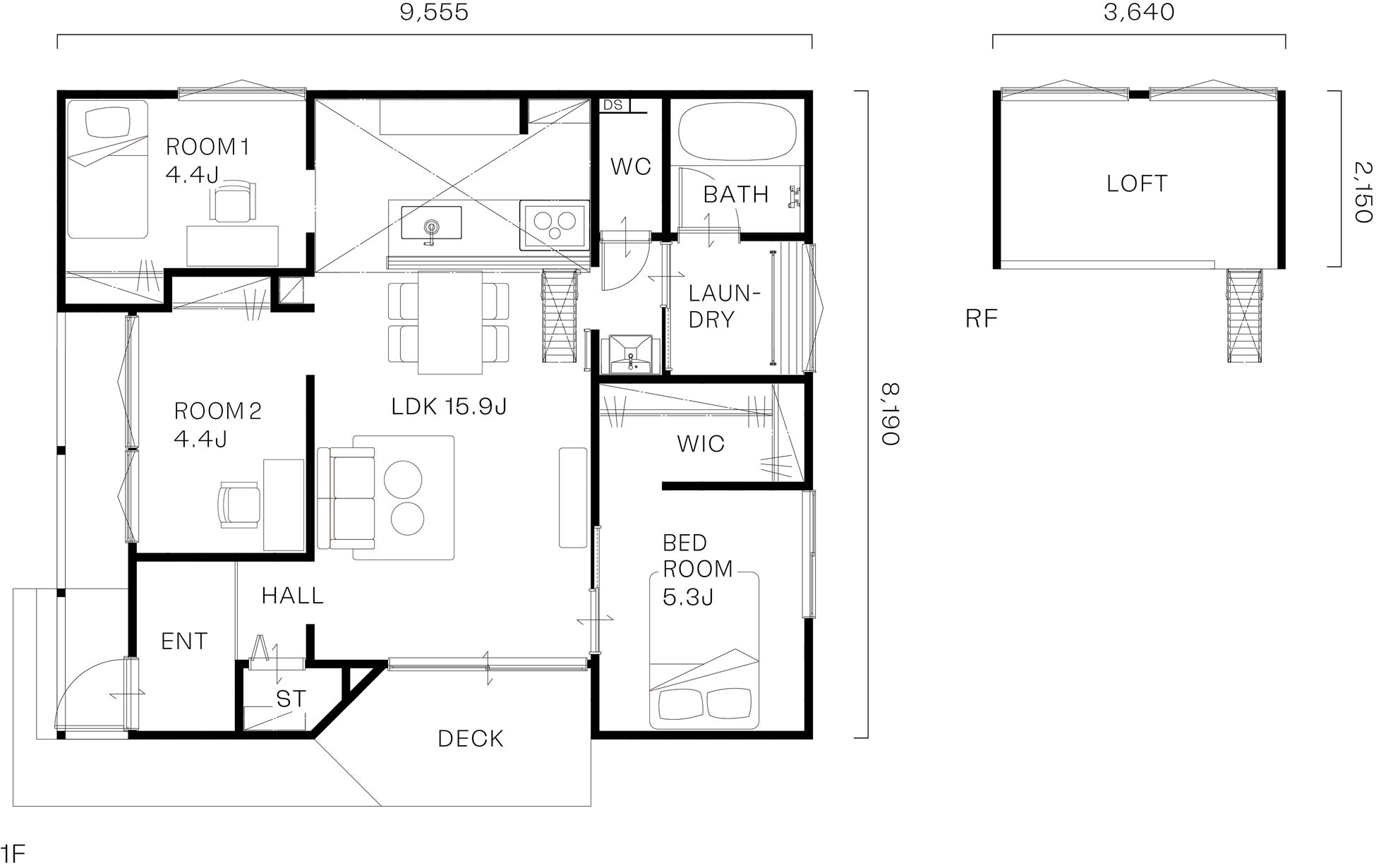
【フロアプラン】

延床面積 / 70.38㎡(21.29坪)
1F床面積 / 70.38㎡(21.29坪)
RF床面積 / 7.82 ㎡(2.37坪)
【WOODBOXとは?】
WOODBOXはデザイン・性能・価格を追求した1200万円から “理想の家づくり”が叶う規格住宅。
規格住宅は専門家によって設計・耐震構造計算が行われているので、安心感が高く 、決められたプランの中で自由にデザインや設備を選択できます。
建築時の見える費用だけでなく、住み始めてからかかる光熱費などWOODBOXの住宅は生涯コストを意識した家づくりをおこっています。
性能の良い家ほど月々の光熱費が少なく、またメンテナンス性を高めることで維持費を抑えることができ、ランニングコストのかからない家になります。

